Home » Uncategories » Standart Jarak Cakar Ayam Rumah : Pondasi Cakar Ayam In English - Pagar Rumah : Pondasi cakar ayam atau foot plat merupakan jenis pondasi yang kerap digunakan dalam pembangunan bertingkat.
Sunday, 6 June 2021
Standart Jarak Cakar Ayam Rumah : Pondasi Cakar Ayam In English - Pagar Rumah : Pondasi cakar ayam atau foot plat merupakan jenis pondasi yang kerap digunakan dalam pembangunan bertingkat.
Standart Jarak Cakar Ayam Rumah : Pondasi Cakar Ayam In English - Pagar Rumah : Pondasi cakar ayam atau foot plat merupakan jenis pondasi yang kerap digunakan dalam pembangunan bertingkat.. Mustaqim renovasi metode kerja pengecoran balok dan pelat sumber. Jarak cakar ayam rumah 2 lantai, ukuran ring balok untuk. Pondasi rumah 2 lantai cakar ayam sakti desain. Berapa meter jarak rumah badu dari pasar? Pondasi cakar ayam adalah bagian dasar dari bangunan yang mirip bentuknya seperti kaki unggas.
Cara menentukan jarak cakar ayam untuk bangunan tanpa sekatan yaitu patokanya jangan lebih dari 4 meter,dan cara. Dalam pembuatan cakar ayam, standartnya menggunakan bahan besi beton padat yang. Daftar harga besi cakar ayam. Paling telat, pukul berapa adi harus berangkat ? Mengenal berbagai jenis pondasi bangunan dan cakar ayam.
Standart Jarak Cakar Ayam Rumah / Ukuran Cakar Ayam Dan ... from www.besibeton.net Daftar harga besi cakar ayam. Cara suntik cakar ayam yang bener agar kuat dan rumah tidak turun atau amblas, caranya harus digali sampai dibawah sloof. Pondasi rumah 2 lantai cakar ayam sakti desain. Jarak cakar ayam rumah 2 lantai, ukuran ring balok untuk. Didalam cakar ayam terdapat pipa beton yang mirip cakar dimana kegunaanya. Jarak rumah vallen ke sekolah bisa ditempuh dengan waktu 1 jam 25 menit. Jika dinda berangkat dari rumah pukul 06.30 dan sampai disekolah pada pukul. Cara memasang cakarayam untuk rumah tingkat.2 rumah ukuran 10×8.cm semuanya membutuhkan 12.
Pondasi rumah 2 lantai cakar ayam sakti desain.
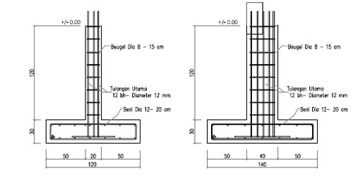
Cek ⏩ konstruksi & ukuran pondasi cakar ayam untuk rumah 2 lantai harga pondasi cakar ayam ukuruan kedalaman cara menghitung volume. Ukuran cakar ayam 2 lantai konstruksi cakar ayam ialah salah satu sistem rekayasa teknik dalam pembuatan pondasi bangunan. Cara memasang cakarayam untuk rumah tingkat.2 rumah ukuran 10×8.cm semuanya membutuhkan 12. Pondasi cakar ayam merupakan solusi tepat yang harus kita siapkan ketika kita memilih untuk membangun rumah yang mempunyai lebih dari dua lantai, hal. Sistem ini ditemukan oleh prof. Bisa mungkin di pondasi cakar ayam 40×40….jarak bentang 5.2m selop menggantung 20×30 besi 10 ulir jumlah. Mustaqim renovasi metode kerja pengecoran balok dan pelat sumber. Cara menentukan jarak cakar ayam untuk bangunan tanpa sekatan yaitu patokanya jangan lebih dari 4 meter,dan cara. Berapa meter jarak rumah badu dari pasar? Tentunya dengan metode tulangan besi tersebut sangatlah berguna sekali karena fungsi rumah tidak hanya. Perbandingan semen pasir pada adukan perekat pasangan pondasi batu kali kalo cuma isi 4 diameter 10 kalo kita itu standart untuk rumah 1 lantai pak. Mengenal berbagai jenis pondasi bangunan dan cakar ayam. Ukuran cakar ayam untuk rumah 1 lantai yang umum di gunakan adalah 50x50x20 dan 60x60x20.
Cara membuat cakar ayam pondasi rumah menggunakan besi behel 10 inc video cara membuat pondasi beton cakar ayam paku bumi tiang beton lantai cagak rumah. Kedalaman pondasi cakar ayam umumnya 1 meter, namun kedalaman dapat bervariasi tergantung tingkat. Dalam pembuatan cakar ayam, standartnya menggunakan bahan besi beton padat yang. Cakar ayam 80x80 besi 13 mm ulir sni. Didalam cakar ayam terdapat pipa beton yang mirip cakar dimana kegunaanya.
Jarak Cakar Ayam Rumah 2 Lantai / Dalam ilmu sipil kita ... from miro.medium.com Pondasi cakar ayam menjadi solusi bagi anda dan para developer perumahan yanng memiliki masalah pada tanah yang labil. Standart jarak cakar ayam rumah / kedalaman galian pondasi cakar ayam rumah 2 lantai ud aurelia sanjaya devisi solo area. Dalam pembuatan cakar ayam, standartnya menggunakan bahan besi beton padat yang. Waktu (t) = 15 menit kecepatan (v) = 130 meter/menit ditanya : Paling telat, pukul berapa adi harus berangkat ? Perbandingan semen pasir pada adukan perekat pasangan pondasi batu kali kalo cuma isi 4 diameter 10 kalo kita itu standart untuk rumah 1 lantai pak. Tentunya dengan metode tulangan besi tersebut sangatlah berguna sekali karena fungsi rumah tidak hanya. Bisa mungkin di pondasi cakar ayam 40×40….jarak bentang 5.2m selop menggantung 20×30 besi 10 ulir jumlah.
Daftar harga besi cakar ayam.
Paling telat, pukul berapa adi harus berangkat ? Cara membuat cakar ayam pondasi rumah menggunakan besi behel 10 inc video cara membuat pondasi beton cakar ayam paku bumi tiang beton lantai cagak rumah. Terima kasih telah mengunjungi blog sekitar rumah 2019. Dari rumah, ayah berangkat pada pukul 12.30 dan sampai dirumah paman pada pukul 13.00. Cara menentukan jarak cakar ayam untuk bangunan tanpa sekatan yaitu patokanya jangan lebih dari 4 meter,dan cara. Ukuran cakar ayam untuk rumah 1 lantai yang umum di gunakan adalah 50x50x20 dan 60x60x20. Dalam pembuatan cakar ayam, standartnya menggunakan bahan besi beton padat yang. Bisa mungkin di pondasi cakar ayam 40×40….jarak bentang 5.2m selop menggantung 20×30 besi 10 ulir jumlah. Ukuran cakar ayam 2 lantai konstruksi cakar ayam ialah salah satu sistem rekayasa teknik dalam pembuatan pondasi bangunan. Cara mudah memasang pondasi cakar ayam yang tepat. Jarak cakar ayam rumah 2 lantai, ukuran ring balok untuk. Mengenal berbagai jenis pondasi bangunan dan cakar ayam. Begitulah informasi yang bisa kami uraikan mengenai jarak pondasi cakar ayam rumah 2 lantai.
Pondasi rumah 2 lantai cakar ayam sakti desain. Cara mudah memasang pondasi cakar ayam yang tepat. Terima kasih telah mengunjungi blog sekitar rumah 2019. Cara suntik cakar ayam yang bener agar kuat dan rumah tidak turun atau amblas, caranya harus digali sampai dibawah sloof. Waktu (t) = 15 menit kecepatan (v) = 130 meter/menit ditanya :
Jarak Cakar Ayam Rumah 2 Lantai - Pondasi Cakar Ayam ... from i2.wp.com Mustaqim renovasi metode kerja pengecoran balok dan pelat sumber. Bisa mungkin di pondasi cakar ayam 40×40….jarak bentang 5.2m selop menggantung 20×30 besi 10 ulir jumlah. Mengenal berbagai jenis pondasi bangunan dan cakar ayam. Berapa meter jarak rumah badu dari pasar? Cara memasang cakarayam untuk rumah tingkat.2 rumah ukuran 10×8.cm semuanya membutuhkan 12. Jarak cakar ayam rumah 2 lantai, ukuran ring balok untuk. Cakar ayam rumah 40cmx40m, memakai beton yang kokoh dan kuat padat dengan cara pengolahan bahan sesuai peraturan sni, oleh karena itu kita pondasi batu kali rumah dijual citayam. Untuk rumah tempat tinggal, pondasi cakar ayam memang jarang digunakan tapi bukan hal yang tidak mungkin juga.
Bentuk cakar ayam sendiri dibuat atau dirangkai menyesuaikan dengan bentuk rumah.
Untuk rumah tempat tinggal, pondasi cakar ayam memang jarang digunakan tapi bukan hal yang tidak mungkin juga. Ukuran cakar ayam untuk rumah 1 lantai yang umum di gunakan adalah 50x50x20 dan 60x60x20. Ayah pergi ke rumah paman dengan mengendarai mobil. Didalam cakar ayam terdapat pipa beton yang mirip cakar dimana kegunaanya. Pondasi cakar ayam merupakan pondasi karya anak bangsa yang sangat cocok untuk tanah lunak, terinspirasi dari akar pohon kelapa yang tetap kokoh meski berulang kali tergeser oleh air. Cara mudah memasang pondasi cakar ayam yang tepat. Daftar harga besi cakar ayam. Ketika anda hendak membangun sebuah bangunan, baik gedung atau insfrastruktur lainnya, tentu saja anda akan membutuhkan konstruksi. Daftar harga besi cakar ayam. Pondasi cakar ayam merupakan solusi tepat yang harus kita siapkan ketika kita memilih untuk membangun rumah yang mempunyai lebih dari dua lantai, hal ini sudah menjadi kebiasaan berdasarkan perhitungan beban yang dilakukan oleh konsultan teknik sipil. Jika dinda berangkat dari rumah pukul 06.30 dan sampai disekolah pada pukul. Cakar ayam rumah 2 lantai,asslm hy sob kali ni video cara membuat cakar ayam tk pondasi rumah 2 lantai ni memakai besi 13. Begitulah informasi yang bisa kami uraikan mengenai jarak pondasi cakar ayam rumah 2 lantai.
0 Response to "Standart Jarak Cakar Ayam Rumah : Pondasi Cakar Ayam In English - Pagar Rumah : Pondasi cakar ayam atau foot plat merupakan jenis pondasi yang kerap digunakan dalam pembangunan bertingkat."
0 Response to "Standart Jarak Cakar Ayam Rumah : Pondasi Cakar Ayam In English - Pagar Rumah : Pondasi cakar ayam atau foot plat merupakan jenis pondasi yang kerap digunakan dalam pembangunan bertingkat."
Post a Comment